Pacific Palisades House

Pacific Palisades House

Location: LA, USA

Area: 4030 sqft

Year: 2025

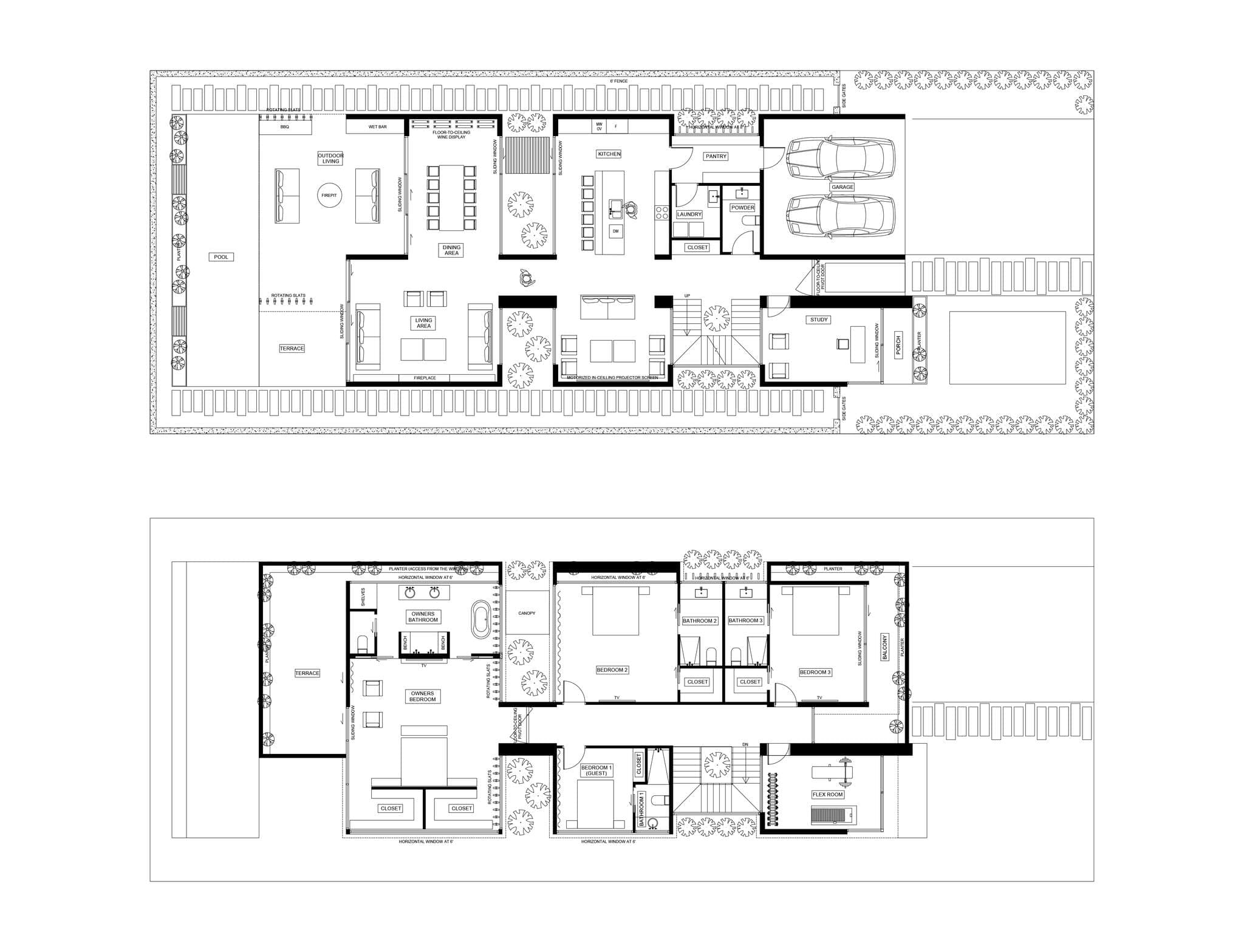
A project in Pacific Palisades - the area affected by the 2024 wildfires. The elongated shape of the site naturally informed the architectural gesture of the house. The concept is built around this long central passage of a house — a spine that connects all functions and ties the architecture to its environment. The house is divided into several distinct sections, each marking a shift in atmosphere or function. These transitions are expressed through symbolic gates, which height the sense of progression as one moves through the residence. From the entrance, you can see straight through the entire passage, reinforcing the home’s axial clarity. The focal point at the end of this visual corridor is the pool, shimmering like an anchor point and bringing a sense of calm continuity to the composition. Natural stone, warm wood, and large expanses of glass create a balance between strength and softness — a quiet architectural response to a site rebuilding after natural devastation. Generous glazing opens the interior to lush greenery. The result is a home defined by rhythm, transparency, and grounded serenity: a long, meditative journey from one space to the next, culminating in water, light, and openness.

What was done

  • Concept
  • Planning solutions
  • 3d visualization
  • Drawings
Pacific Palisades House gallery image 1Pacific Palisades House gallery image 2Pacific Palisades House gallery image 3Pacific Palisades House gallery image 4Pacific Palisades House gallery image 5Pacific Palisades House gallery image 6Pacific Palisades House gallery image 7Pacific Palisades House gallery image 8Pacific Palisades House gallery image 9Pacific Palisades House gallery image 10