Corgi Residence

Corgi Residence

Location: Austin, USA

Area: 4500 sqft

Year: 2025

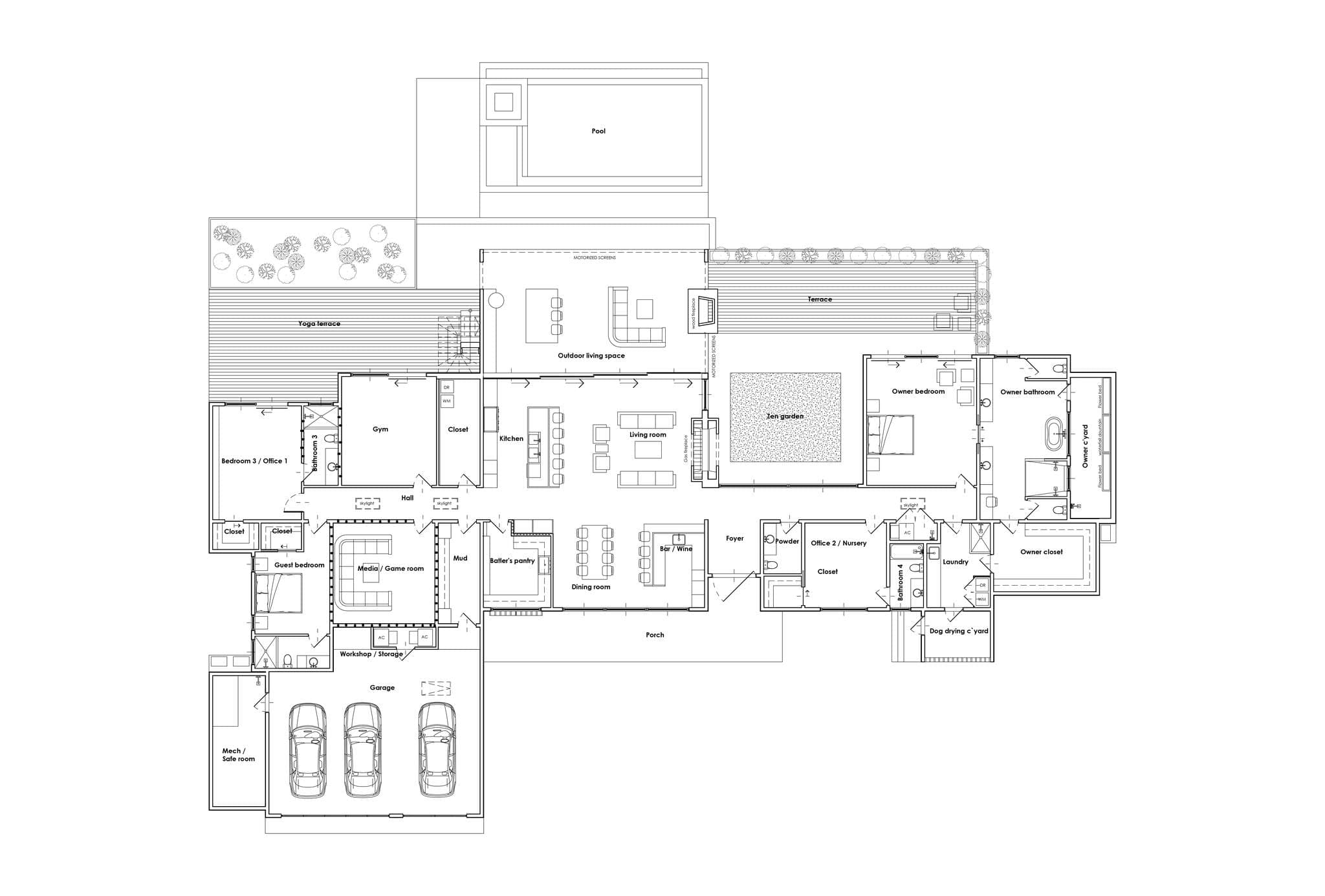
This spacious single-story house for the family with pets. A distinctive feature of the home is its series of cozy semi-open areas, where the interior blends seamlessly with the surrounding environment. One of such spaces is the outdoor living area, which can be combined with the kitchen by folding back the sliding doors. There is also a courtyard with a Japanese garden, visible from several parts of the house, offering a quiet place to relax in silence. The main bathroom also opens onto a private outdoor retreat featuring a waterfall and an open-air shower. The heart of the home is the main living space, which includes a large kitchen, a recreation area with a fireplace, a bar, and a dining zone. The layout offers a thoughtful balance between spaces for socializing and areas for solitude. For both the exterior and interior design, we combined modern solutions with natural materials such as wood, concrete, and stone, accented with Japandi-style details. This creates a feeling of closeness to nature without sacrificing comfort and practicality. Created in partnership with ArtVillage dvlp.

What was done

  • Concept
  • Planning solutions
  • 3d visualization
  • Drawings
Corgi Residence gallery image 1Corgi Residence gallery image 2Corgi Residence gallery image 3Corgi Residence gallery image 4Corgi Residence gallery image 5Corgi Residence gallery image 6Corgi Residence gallery image 7Corgi Residence gallery image 8Corgi Residence gallery image 9Corgi Residence gallery image 10Corgi Residence gallery image 11Corgi Residence gallery image 12Corgi Residence gallery image 13Corgi Residence gallery image 14